Bethesda, MD
2025
3,500 sf

The Bethesda Residence is located in an elegant suburban neighborhood just minutes from the heart of downtown Bethesda. Longtime residents of the area, the clients- a family of four including a heart surgeon with a local practice, a radiologist who works remotely for a university medical center, and their two college-aged children- saw an opportunity in 2021 to purchase a centrally located property whose existing house was a tear-down. The project offered a chance to reimagine suburban living through a contemporary lens, balancing proximity, privacy, and light.

Designed in collaboration with Thomson & Cooke Architects,, the home responds carefully to its compact lot and closely spaced neighboring houses. From the outset, the clients sought a durable, low-maintenance exterior with a strong architectural presence. Fiber cement panels were selected to create a crisp, sculptural facade that captures texture and shifting light throughout the day. While initially considering cast-in-place concrete, the fiber cement system provided greater versatility while maintaining the desired sense of solidity and refinement.

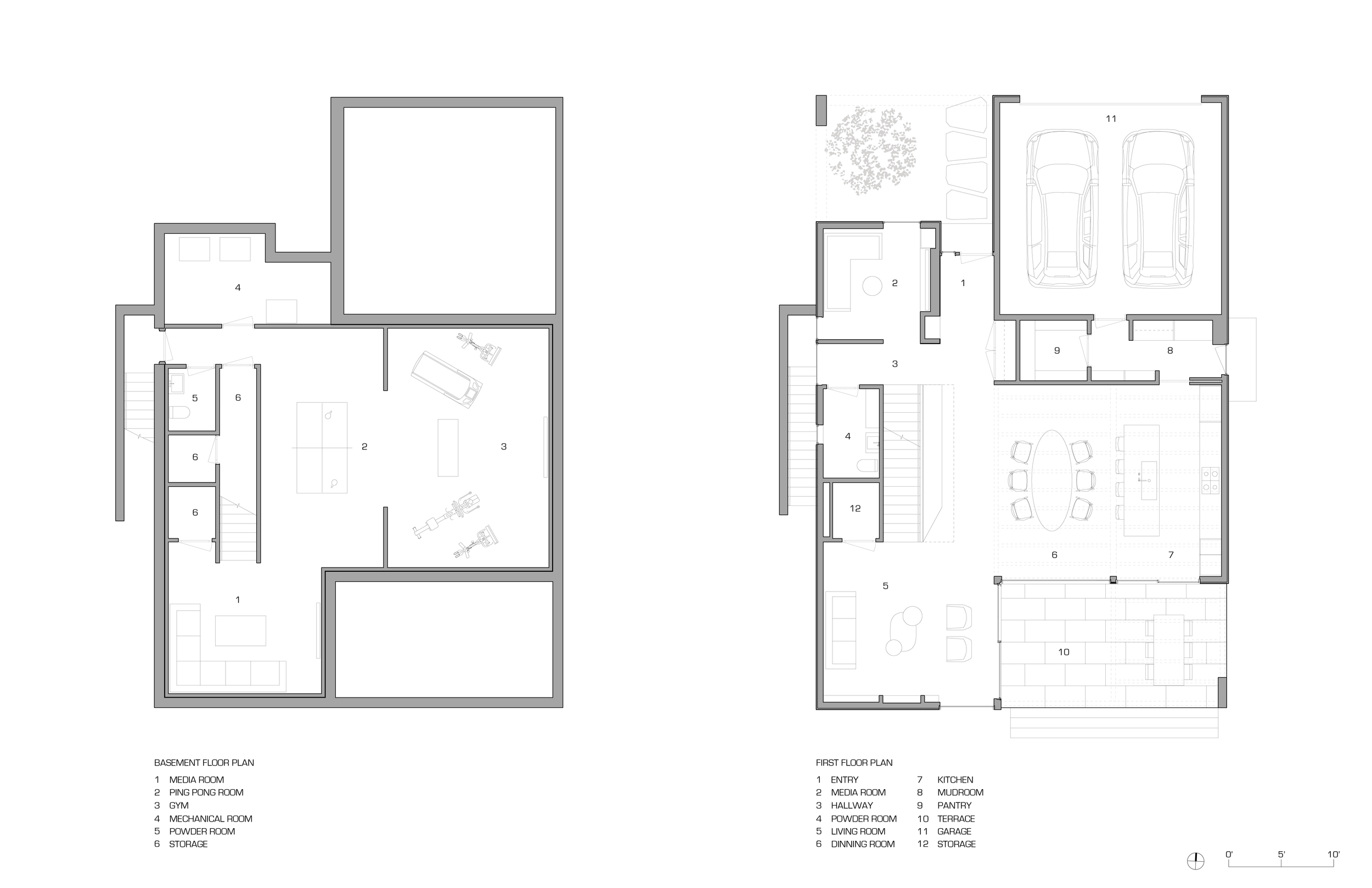
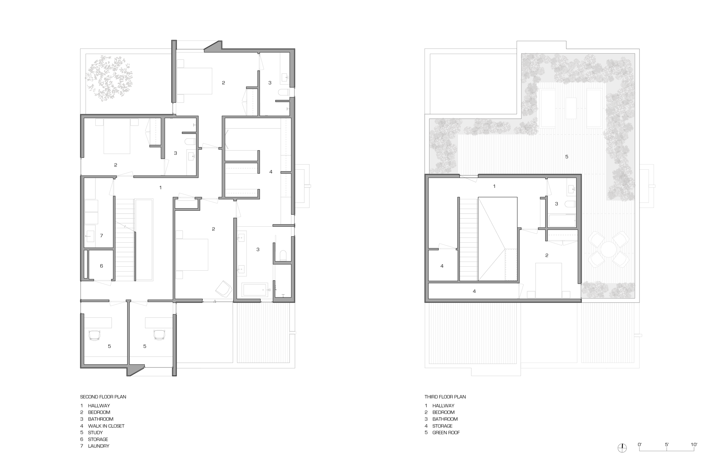
At the center of the home, a three-story faceted light well draws daylight deep into the interior. Positioned along the stairwell, this vertical volume allows sunlight to cascade downward, bouncing diffuse light across circulation spaces on the first and second floors. In a dense suburban context, the light well became both a functional and experiential element- maintaining visual privacy while animating the home with the subtle movement of light over time.

Indoor-outdoor connections were carefully orchestrated to maximize the potential of the small site. Terraces and precisely placed windows extend living spaces outward, creating moments of openness without sacrificing intimacy. A lap pool and spa were seamlessly integrated into the backyard, transforming the limited outdoor area into a gracious setting for daily use, relaxation, and entertaining. Together, these strategies produce a home that feels luminous, composed, and quietly dynamic - rooted in its neighborhood while offering a renewed way of living within it.

CONSULTANTS
STRUCTURAL Elhert Bryan Consulting Structural Engineers
MEP Owens Comfort Systems
CIVIL CAS Engineering
LANDSCAPE ARCHITECT Campion Hruby Landscape Architects
LIGHTING Pierce Lighting Studio
CONTRACTOR Alliance Builders
PHOTOGRAPHER Jake Balston